June 2007

June 2, 2007 - Dave and I created 2 web sites for our area
Cherokee Hills Wired
Pickens County Wired


June 5, 2007 - More land was cleared. Above are the pictures of the land being dug out for the garage (top) and the house (bottom two). We also got final plans for house see links below for full details.
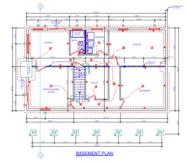
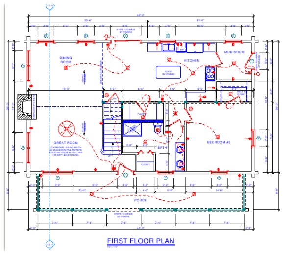
House Plans
Garage Plans
June 7, 2007 - Gravel driveway was poured.




June 14, 2007 - Guys came out to dig well. They dug down 425 feet. Footings for the basement were put in by cement guys.
June 20, 2007 - Latest update - 8 trucks delivering the logs on Friday .. watch for pictures to come..
June 21, 2007 - Concrete was poured... We have basement walls!. Got a call from Southland today looks like there will only be 5 trucks delivering house.
June 22, 2007 - Logs were delivered.. It's scattered under tarps all over the yard.
June 27, 2007 - We have a floor! Waterproofing was added around basement walls. Talked with a guy about doing the kitchen.
June 28, 2007 - I know I know I been slacking.. here's the latest ...Dirt was filled in around basement walls.