The Beginning
Well Hubby and I are really going to do it........
We are having our home built and it will be a log home..
We are so excited...
We closed on the property on January 30th 2007.
It is right across the street from where we live now.


The road to our place. Cherokee Hills Dr, and a view of Walnut Mountain.

February 27th 2007 - The county came in and put in a culvert for us.



This may be the ones we have built (aprox. 1394 sq. ft. on 1st floor and 734 sq. ft. on 2nd floor), which will include a basement (aprox. 1394 sq. ft.) and with this garage (aprox. 1084 sq. ft.).
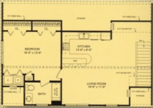
The upper floor of the garage will be our quest house (aprox. 803 sq. ft.).
We may opt to order our log home through
Southland Log Homes
Southland Stockade Round/Flat with Dimensions - 6" tall x 8" thick:
Logs are smoothly rounded on the
outside and flat on the inside. Will be made of White Pine.
The guesthouse above the garage.

Some ideas I found check out the cool kitchen, with maybe a wagon wheel chandelier over the dining room table.

A whirl pool bath overlooking the woods, nice bathroom sink area,

And the bench would make a good storage place and a nice place for a kitty or two to sit.
This kinda gives you an idea of what the walls will look like too.

Spring has arrived and the trees and wild flowers are blooming.

March 31, 2007 - Dave and our neighbor Gus taking some measurements of our lot.
They marked off the area where the house would go.